Bureaux

Des bureaux pour une usine…

…avec 4 000 m2 d’atelier. J’interviens sur le bâtiment de bureaux et services (3 000 m2). Pour une définition plus approfondie du programme et la réalisation des espaces…

D’autres bureaux

Dans le cadre de la rénovation de 3 plateaux de bureaux (3 x 300m2) pour une agence bancaire, j’interviens en phase APS et APD pour la définition des…

Bureaux éphémères

Projet de space planning éphémère dans le cadre d’une suite marketing (AO). Année : 2012 Surface : — m2

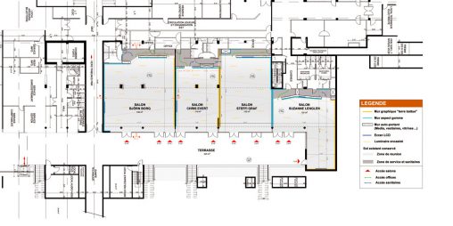
Rénovation d’espaces relation presse

Bureaux & retail

J’entre pour quelques temps chez RDAI et participe en phase APD à la rénovation du siège social YSL. Au sein du bureau d’étude, je travaille plus particulièrement sur…

Une scierie & ses bureaux

C’est alors ma première collaboration avec un architecte urbaniste. À ses côtés je travaille sur une scierie et son bâtiment de bureaux rattaché, au coeur de la Bourgogne….