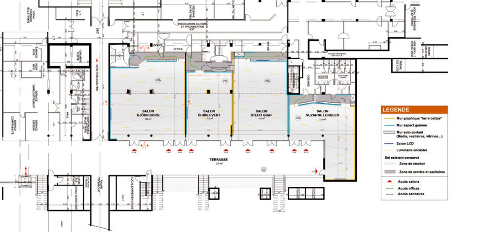
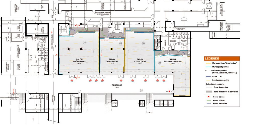
Rénovation des espaces relation presse du stade Roland Garros. L’objectif était alors de rendre modulable les espaces existants, en une ou plusieurs salles de réunions mieux équipées et surtout, de redéfinir les volumes actuels trop brutes, par une identité architecturale forte, faisant écho au restaurant du niveau supérieur. [non réalisé]
Année : 2008
Surface : 566 m2
Surface : 566 m2

