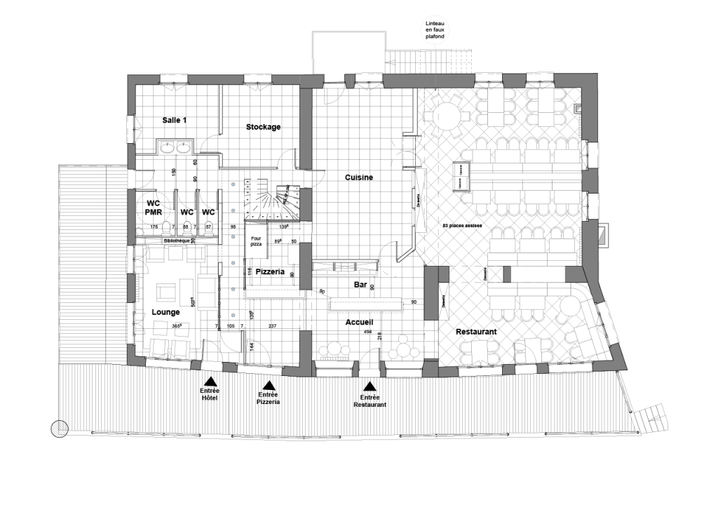
En phase esquisse et APS, une collaboration pour la rénovation d’un hôtel restaurant** et ses huit chambres. Plans existants, projetés et 3D Archicad.



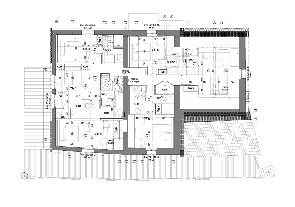
En phase esquisse et APS, une collaboration pour la rénovation d’un hôtel restaurant** et ses huit chambres. Plans existants, projetés et 3D Archicad.


